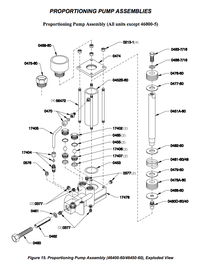
Gusmer Grey Predator | Proportioning Pump Assemblies (click to zoom) Find the Parts That You Need Browse Our List to find the manual or part that you need Click Here Let us Repair Your Machine for You Contact Us Today Click Here Ref. Part Description QTY. 0213-1 Hex Nut 0377 Flush Seal Pipe Plug 0451A-60 Pump Piston Rod 0452B-60 O-Ring 0453 Screw 0455 Valve Ball 0460 Screen Screw 0461 Snap Ring 0462 Pump Screen 0470 Tube Nipple 0474 Cylinder Top 0475-60 R - Packing Nut (46400-60 Only) 0476-60 Packing Set 0477-60 Packing Support Washer 0478A-60 Packing Set 0479-60 Packing Support Washer 0480D-60/40 Packing Retainer Bolt 0481-60/48 Conical Spring 0482-60 Spring Retainer Ring 0483-7/16 Hex Head Cap Screw 0485 O-Ring 0486-7/16 Washer 0488-60 Packing Retainer Washer 0489-60 A - Packing Nut with Lube Cup (46450-60 Only) 0576 Flush Seal Pipe Plug 17402 Check Valve Retainer 17404 Tube Fitting 17405 Crossover Tube with Ferrule 17406 Check Valve Seat 17407 Check Valve Seal 17428 Resin Pump Base (Includes 0377) 17478 Iso Pump Base (Includes 0377) 56472 Tie Rod Name Email Phone